Maison d’hôte sur mesure en moins de 10 mois clefs en main.
📍 Emplacement stratégique, à seulement 7 minutes à pied des souks, par une rue animée et commerçante 🛍️ 🚶♂️
Accès direct et facile à la Place Jemaa el-Fna en ligne droite en passant par les souks
🚗 Accès voiture à environ 100 m – pratique et rare dans la médina !
📈 Secteur en évolution avec un avenir prometteur, parfait pour un investissement intelligent
🏡 Premier bornage en cours : Terrain en cours de réquisition de titre (démarche déjà engagée)
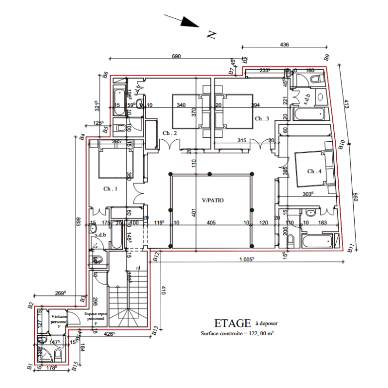
✅ Plan de maison d’hôte agréez avec 6 suites plus chambre de gardien.
🏷️ Projet complet de la maison d’hôte de 6 chambres (terrain plus plan de maison d’hôte agréez plus réquisition du titre en cours et déjà payée – titre foncier délivré en fin de travaux) de 137m2 : 3 000 000 DH
➡️ Total acquisition terrain + frais : 3 285 000 DH
💎 Coût des travaux estimés à partir de : 1 810 000 DH
👉 3 285 000 DH (terrain + frais) + 1 810 000 DH (travaux) = 5 095 000 DH
🗓️ 10 mois maximum → Livraison finale clé en main avec titre foncier en main à la fin du projet.
Un projet structuré et sécurisé, idéal pour investisseurs exigeants :
Opportunité rare de devenir propriétaire d’un riad de luxe clé en main au cœur de Marrakech
Terrain déjà engagé, réquisition en cours premier bornage en cours (titre livré à la fin)
Travaux premium inclus, sur 10 mois, sans gestion administrative pour l’acquéreur.
Maison d’hôtes de standing
= Terrain + titres + plans + permis + construction d’un riad haut standing avec 6 suites.
📌 Une opportunité rare pour accéder à une maison d’hôtes ou riad de luxe abordable dans l’un des quartiers les plus prometteurs de Marrakech !
📲 Contactez-nous en DM pour les plans, un devis personnalisé et l’étude complète du projet 🧾
| Titre | Type de bien | Prix | Chambres | Thermes | Surface | Date de disponibilité |
|---|---|---|---|---|---|---|
| 2,800,000dh | m² |
Compare listings
Comparer